1017 and 1029 Brebeuf Road

Planning Application No. OPA-04-24 and ZBA-05-24

Applicant

  • Owner: Brand X Materials & Supply Inc. and 2832623 Ontario Ltd
  • Agent: The Jones Consulting Group Ltd. (Ray Duhamel)
  • Phone: 705-790-8928
  • Email: rduhamel@jonesconsulting.com 

 

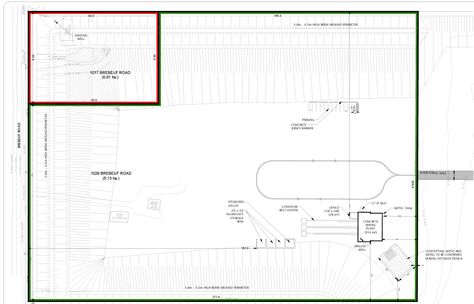
Site Plan
Site Plan

 

Summary of Proposal

The purpose of the Official Plan Amendment is to redesignate these lands from 'Greenlands', 'Strategic Growth Area I', 'Mixed Use Districts', 'Commercial Corridor' and 'Natural Heritage' to 'Rural Area' and 'Aggregate Extraction Area'.

The purpose of the Zoning By-law Amendment is to rezone these lands to increase the maximum height for the concrete ready mix plant building and the silo tower, and to remove the holding symbol.

Technical Proposal 

Official Plan Amendment

The effect of the Official Plan Amendment is to:

  • Amend Schedule A – Growth Areas to remove the property from 'Greenlands' and 'Strategic Growth Area I' designations 
  • Amend Schedule B – Urban Structure to redesignate the property from 'Mixed Use Districts' and  'Greenlands' to 'Rural Area' 
  • Amend Schedule “C” – Land Use to redesignate the property from 'Natural Heritage' and 'Commercial Corridor' designation to 'Aggregate Extraction Area'

Zoning By-law Amendment

The effect of the Zoning By-law Amendment is to rezone these lands from the Industrial (M1-H) zone to Industrial Exception (M2) zone in accordance with the following site-specific provisions:

  • increase the maximum height to be 15 metres for the concrete ready mix plant building;
  • increase the maximum height to be 21 metres for the silo tower associated with the concrete ready mix plant; and
  • remove the holding symbol.

Supporting Documents 

Status

The Official Plan Amendment was adopted by Council on October 15, 2025 as By-law 2025-57. The Notice of Adoption was issued and the adoption record is to be sent to the County of Simcoe as the approval authority.

The Zoning By-law Amendment was approved by Council on October 15, 2025 as By-law 2025-58. The Notice of Passing was issued and is subject to a 20-day appeal period.

 

Brebeuf Road Elevation
Brebeuf Road Elevation

 

Contact Us

Town of Midland
575 Dominion Avenue
Midland, ON L4R 1R2
Contact Us