16621 Highway 12
Planning Application No. SPA-09-21
Applicant
- Owner: 2825951 Ontario Ltd.
- Agent: Not applicable
- Phone: Not applicable
- Email: Not applicable
Proposed Development
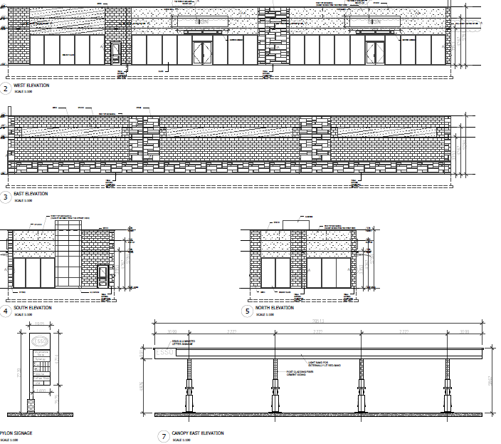
The purpose of the application is to obtain site plan approval to construct a 4-post gas bar with canopy, convenience store and restaurant.

Supporting Documents
Status
The Site Plan application has been approved pending the applicant entering into the Site Plan Agreement.
Contact Us
Town of Midland
575 Dominion Avenue
Midland, ON L4R 1R2
Contact Us