179 Fourth Street
Planning Application No. SPA-03-25
Applicant
- Owner: Home Hardware Stores Ltd
- Agent: Cowden-Woods Design Builder Ltd. (Anita Stacey)
- Phone: 705-721-8422
- Email: astacey@cowdenwoods.on.ca
Proposed Development
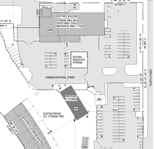
The purpose of the application is to obtain site plan approval for the development of a new accessory building. The building is proposed to have a total gross floor area of 371 square metres for the purpose of additional storage of product and materials associated with Home Hardware.

Status
The Site Plan application has been approved pending the applicant entering into the Site Plan Agreement.

Contact Us
Town of Midland
575 Dominion Avenue
Midland, ON L4R 1R2
Contact Us