234 King Street
Planning Application No. SPA-01-25
Applicant
Owner: 2735682 Ontario Inc
Agent: Evans Planning (Edward Mak)
Phone: 437-213-3114
Email: emak@evansplanning.com

Proposed Development
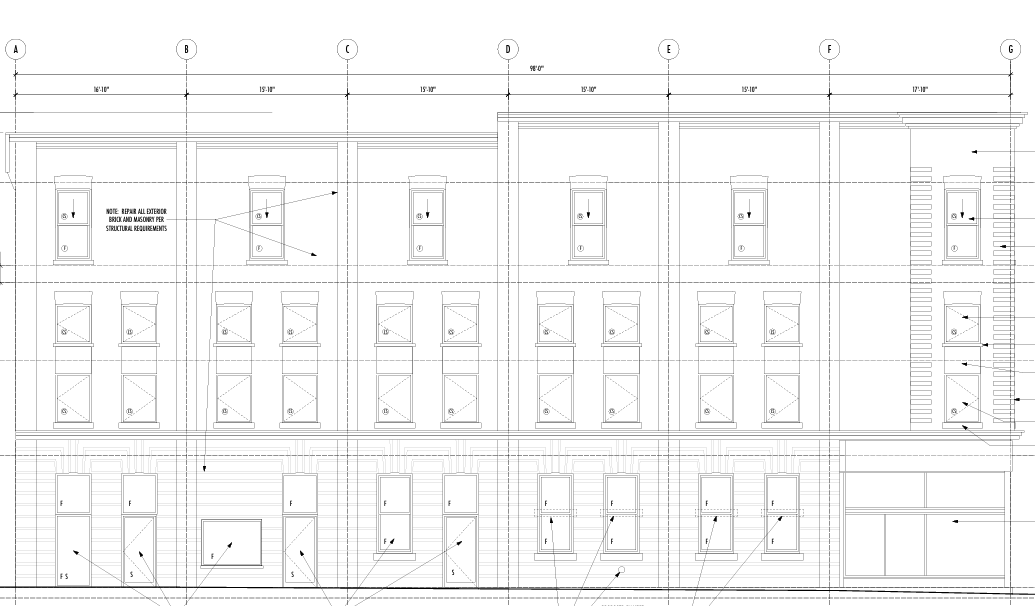
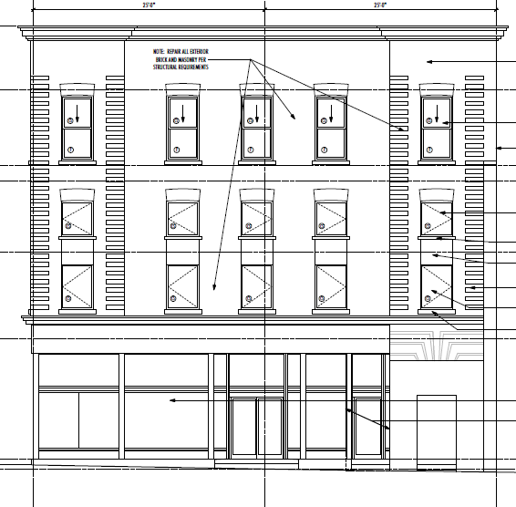
The purpose of the application is to obtain site plan approval to convert the current 3-storey building into a 4-story building without increasing the overall height. The conversion includes the creation of 18 apartment dwelling units to be constructed on the upper floors of the building with commercial uses being maintained on the ground floor.
Supporting Documents
Status
The Site Plan application has been approved pending the applicant entering into the Site Plan Agreement.
Contact Us
Town of Midland
575 Dominion Avenue
Midland, ON L4R 1R2
Contact Us