526 Bay Street

Planning Application No. ZBA04-25

Applicant

  • Owner: 2489752 Ontario Inc
  • Agent: Quantum Engineering (Katrina Lalonde)
  • Phone: 705-549-1791
  • Email: katrina@qeng.ca

Summary of Proposal

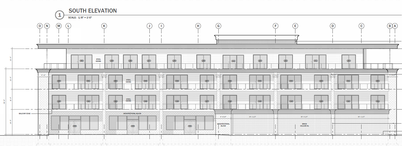
The purpose of the application is to rezone the lands to a site-specific exception zone to permit a Mixed Use Apartment Building. The approval would facilitate the development of a four-storey mixed-use building with ground floor commercial and accessory residential uses, 15 residential apartment units on the upper floors, and associated parking.

Technical Proposal

The effect of the Zoning By-law Amendment is to:

  • Rezone the lands from the Downtown Core Commercial (DC) to a site-specific exemption zone (DC-XX) in accordance with the following: 
    • Add “Apartment Building, Mixed Use” as a permitted use
    • Amend the definition of an “Apartment Building, Mixed Use” to add "Accessory residential uses shall be permitted on the ground floor of an Apartment Building, Mixed Use, such as an office, entryway, storage, lockers, common room, and mailboxes".

Supporting Documents

Status

First submission received and is under review.

The application has been deemed complete and a public meeting has been scheduled for September 3, 2025 at 6:00 p.m. View the Notice of Complete Application and Public Meeting for more information. A decision is not being made as this time. All comments received as part of the statutory consultation period will be provided to Council and addressed through a recommendation report at a later date.

 

Site Plan
Site Plan
Bayshore Drive Elevation
Bayshore Drive Elevation

 

Contact Us

Town of Midland
575 Dominion Avenue
Midland, ON L4R 1R2
Contact Us