824 King Street
Planning Application No. SPA-02-24
Applicant
- Owner: 1000456191 Ontario Limited
- Agent: Yallowega Architecture Inc. (Rick Yallowega)
- Phone: 705-522-5380
- Email: rick@yallowega.ca
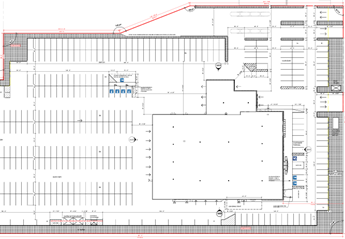
Proposed Development
The purpose of the application is to obtain Site Plan Approval for the redevelopment of the automotive dealership. The proposed 2-storey building would have a ground floor area of 3481.7 square metres, with a gross floor area of 4334.7 square metres. The site also includes inventory parking, customer parking, an area for gated inventory, and future EV charging stations.

Supporting Documents
Status
The third submission has been received and is under review.

Contact Us
Town of Midland
575 Dominion Avenue
Midland, ON L4R 1R2
Contact Us