9281 County Road 93 SPA-15-18

Planning Application No. SPA-15-18

Applicant

  • Owner: 1626725 Ontario Ltd
  • Agent: Not applicable
  • Phone: Not applicable
  • Email: Not applicable

Proposed Development

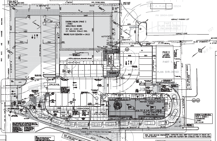
The purpose of the application is to amend the existing site plan agreement to add an additional building to the lands for an eating establishment with a drive through.

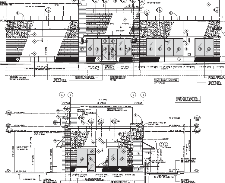
Supporting Documents

 

Elevations
Elevations

 

Status

The Site Plan application has been approved.

 

Site Plan
Site Plan

 

Contact Us

Town of Midland
575 Dominion Avenue
Midland, ON L4R 1R2
Contact Us