952 Jones Road

Planning Application No. SPA-01-23

Applicant

  • Owner: Highway 12 Developments Inc.
  • Agent: Not applicable
  • Phone: Not applicable
  • Email: Not applicable

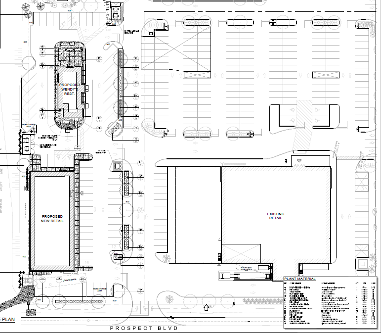
Proposed Development

The purpose of the application is to amend the existing site plan agreement to add an additional building to the lands for retail purposes.

Supporting Documents

Site Plan

 

Elevations
Elevations

 

Status

The Site Plan application has been approved.

 

Site Plan
Site Plan

 

Contact Us

Town of Midland
575 Dominion Avenue
Midland, ON L4R 1R2
Contact Us