952 Jones Road SPA-01-20

Planning Application No. SPA-01-20

Applicant

  • Owner: Highway 12 Developments Inc
  • Agent: Not applicable
  • Phone: Not applicable
  • Email: Not applicable

Proposed Development 

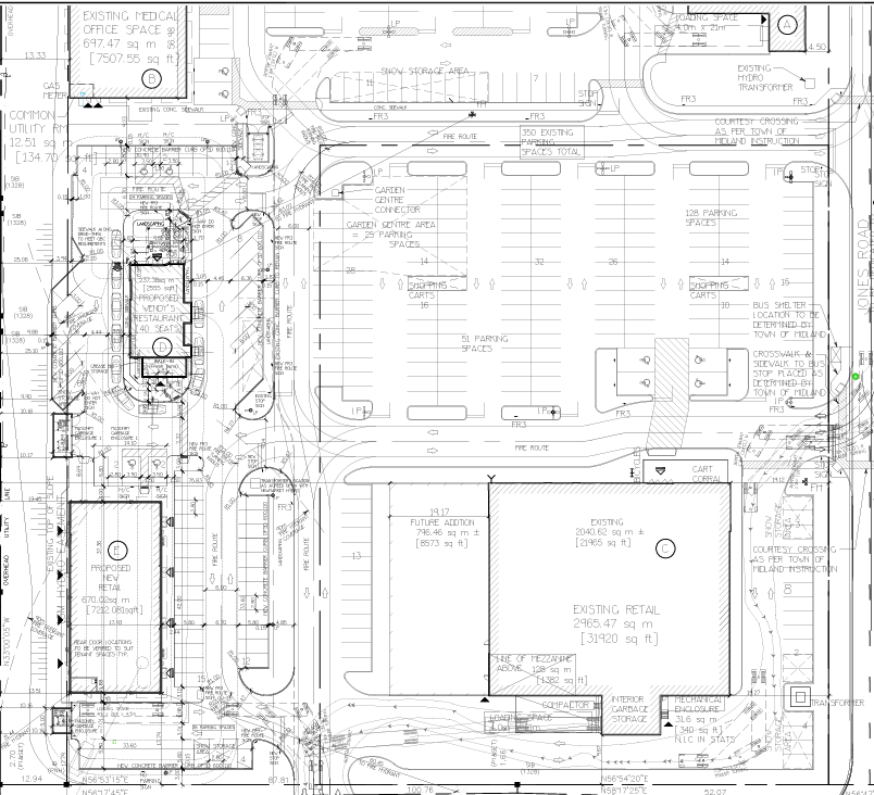
The purpose of the application is to amend the existing site plan agreement to add an additional building to the lands for an eating establishment.

Supporting Documents 

 

Site Plan
Site Plan

 

Status 

The Site Plan application has been approved.

 

Front Elevation
Front Elevation

 

Contact Us

Town of Midland
575 Dominion Avenue
Midland, ON L4R 1R2
Contact Us