Applicant
Owner: Highway 12 Developments Inc
Agent: Not applicable
Phone: Not applicable
Email: Not applicable
Proposed Development
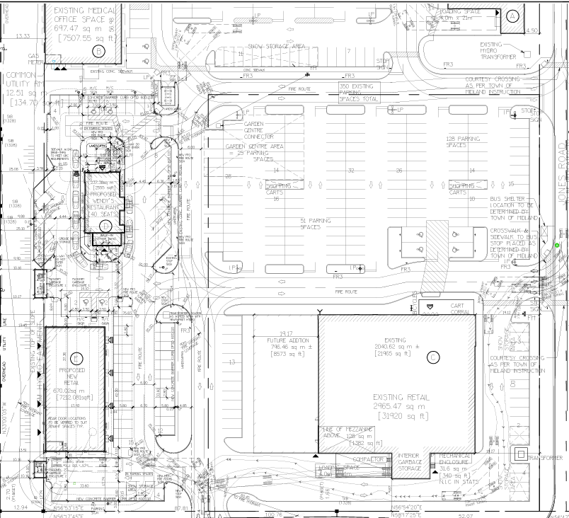
The purpose of the application is to amend the existing site plan agreement to add an additional building to the lands for an eating establishment.

Supporting Documents
Partial Site Plan
Elevations 1
Elevations 2
Status
The Site Plan application has been approved..

