Applicant
Owner: Highway 12 Developments Inc.Agent: Not applicable
Phone: Not applicable
Email: Not applicable
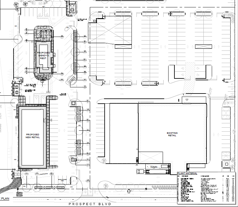
Proposed Development
The purpose of the application is to amend the existing site plan agreement to add an additional building to the lands for retail purposes.

