Applicant
Owner: 2825951 Ontario Ltd.Agent: Not applicable
Phone: Not applicable
Email: Not applicable
Proposed Development
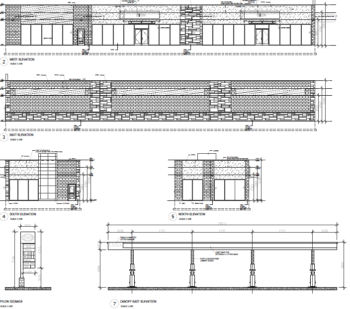
The purpose of the application is to obtain site plan approval to construct a 4-post gas bar with canopy, convenience store and restaurant.Supporting Documents
Site PlanArchitectural Drawings and Elevations
Planning Justification & Urban Design Report
Functional Servicing & Stormwater Management Report
Geotechnical Report
Grading Plan
Hydrogeological Assessment
Photometric Lighting Plan
Traffic Impact Study
Tree Preservation Plan
Landscaping Plan


