Applicant
Owner: 1626725 Ontario LtdAgent: Not applicable
Phone: Not applicable
Email: Not applicable
Proposed Development
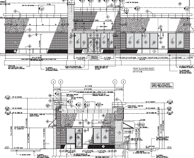
The purpose of the application is to amend the existing site plan agreement to add an additional building to the lands for an eating establishment with a drive through.
Supporting Documents

Status
The Site Plan application has been approved.

