Applicant
Owner: 1000456191 Ontario Limited
Agent: Yallowega Architecture Inc. (Rick Yallowega)
Phone: 705-522-5380
Email: rick@yallowega.ca
Proposed Development
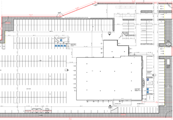
The purpose of the application is to obtain Site Plan Approval for the redevelopment of the automotive dealership. The proposed 2-storey building would have a ground floor area of 3481.7 square metres, with a gross floor area of 4334.7 square metres. The site also includes inventory parking, customer parking, an area for gated inventory, and future EV charging stations.

Supporting Documents
Site Plan
Elevations
Stormwater Management Report
Civil Drawing Set
Photometrics
Status
The third submission has been received and is under review.

