Applicant
Owner: 2735682 Ontario Inc
Agent: Evans Planning (Edward Mak)
Phone: 437-213-3114
Email: emak@evansplanning.com
Proposed Development
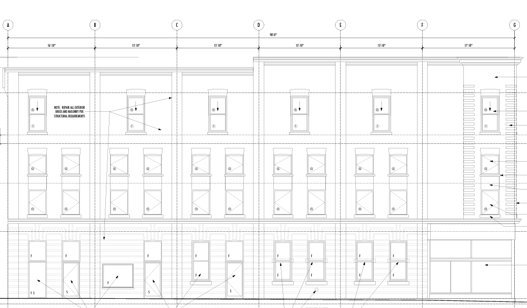
The purpose of the application is to obtain site plan approval to convert the current 3-storey building into a 4-story building without increasing the overall height. The conversion includes the creation of 18 apartment dwelling units to be constructed on the upper floors of the building with commercial uses being maintained on the ground floor.

Supporting DocumentsStatusThe Site Plan application has been approved pending the applicant entering into the Site Plan Agreement. |


