Applicant
Owner: 2754210 Ontario Limited
Contact: Redwood Park Communities (Mujtaba Mir)
Email: mujtaba@redwoodparkcommunities.com
Proposed Development
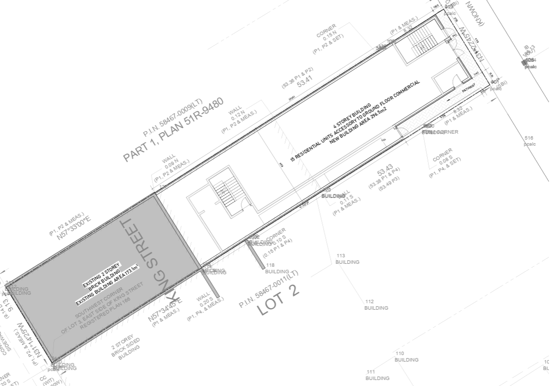
The purpose of the application is to obtain site plan approval for the redevelopment of the rear of the building, being a new four-storey mixed-use addition, with a fifth storey to be used as a mechanical room. This portion of the building would contain ground floor commercial and 15 accessory residential units to be used as affordable housing and having access from Bourgeois Lane.
Supporting Documents
Site Plan Drawing and Elevations
Site Servicing and Grading Plan
Status
First submission comments provided to applicant. The Town is waiting for the second submission to be provided.



