Applicant
Owner: Brand X Materials & Supply Inc. and 2832623 Ontario Ltd
Agent: The Jones Consulting Group Ltd. (Ray Duhamel)
Phone: 705-790-8928
Email: rduhamel@jonesconsulting.com
Summary of Proposal
The purpose of the Official Plan Amendment is to redesignate these lands from 'Greenlands', 'Strategic Growth Area I', 'Mixed Use Districts', 'Commercial Corridor' and 'Natural Heritage' to 'Rural Area' and 'Aggregate Extraction Area'.
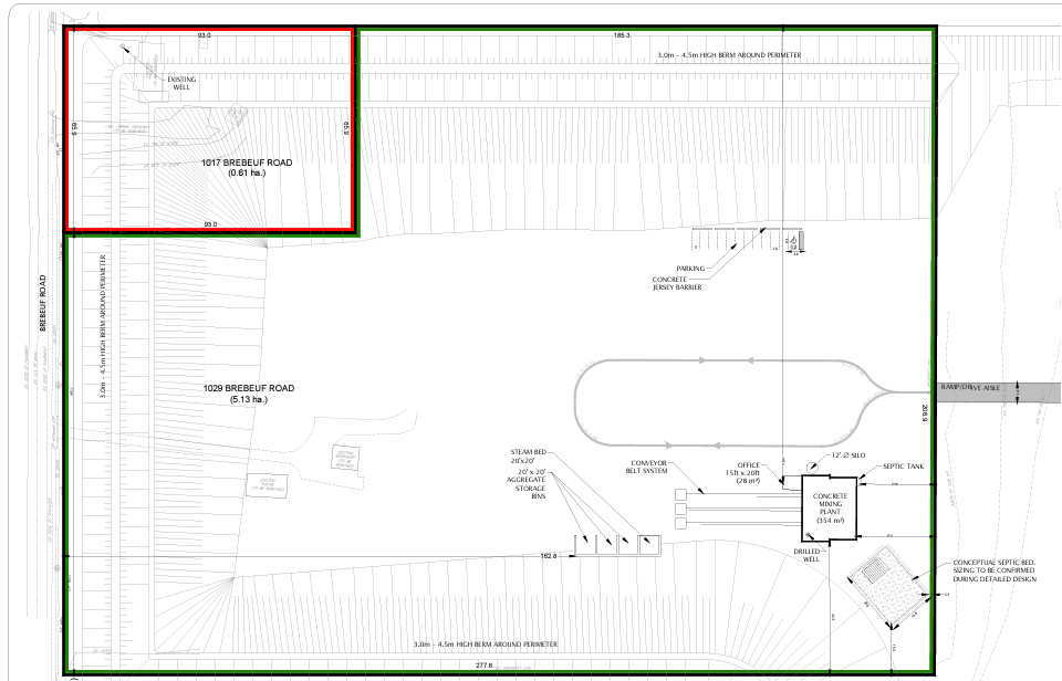
The purpose of the Zoning By-law Amendment is to rezone these lands to increase the maximum height for the concrete ready mix plant building and the silo tower, and to remove the holding symbol.
Technical Proposal
Official Plan Amendment
The effect of the Official Plan Amendment is to:
- Amend Schedule A – Growth Areas to remove the property from 'Greenlands' and 'Strategic Growth Area I' designations
- Amend Schedule B – Urban Structure to redesignate the property from 'Mixed Use Districts' and 'Greenlands' to 'Rural Area'
- Amend Schedule “C” – Land Use to redesignate the property from 'Natural Heritage' and 'Commercial Corridor' designation to 'Aggregate Extraction Area'
Zoning By-law Amendment
The effect of the Zoning By-law Amendment is to rezone these lands from the Industrial (M1-H) zone to Industrial Exception (M2) zone in accordance with the following site-specific provisions:
- increase the maximum height to be 15 metres for the concrete ready mix plant building;
- increase the maximum height to be 21 metres for the silo tower associated with the concrete ready mix plant; and
- remove the holding symbol.
Supporting Documents
Site PlanPlanning Justification Report
Environmental Impact Study
Stage 1-2 Archaeological Assessment
Stage 3 Archaeological Assessment
Elevations Drawings and Floor Plan
Draft OPA
Draft ZBA
Status
The Official Plan Amendment was adopted by Council on October 15, 2025 as By-law 2025-57. The Notice of Adoption was issued and the adoption record is to be sent to the County of Simcoe as the approval authority.
The Zoning By-law Amendment was approved by Council on October 15, 2025 as By-law 2025-58. The Notice of Passing was issued and is subject to a 20-day appeal period.

